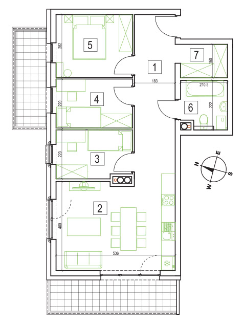
Bm4.05