- 1Parter
- 2Wybierz Piętro
-
3Wybierz mieszkanie
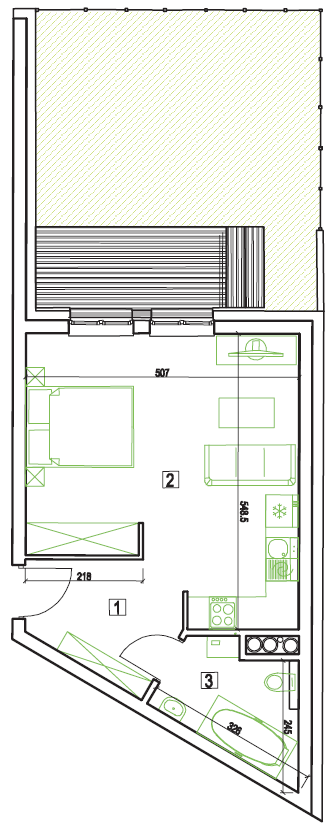
CM0.02
| Nr m.: | CM0.02 |
| Piętro: | Parter |
| Pokoje: | 1 |
| Metraż | 33.92 m2 |
| Przedpokój | 5.46 m2 |
| Salon z aneksem kuchennym | 23.69 m2 |
| Łazienka | 4.77 m2 |
| Balkon | 6.59 m2 |
| Ogródek | 22.61 m2 |
| Nr m.: | CM0.02 |
| Piętro: | Parter |
| Pokoje: | 1 |
| Metraż | 33.92 m2 |
| Przedpokój | 5.46 m2 |
| Salon z aneksem kuchennym | 23.69 m2 |
| Łazienka | 4.77 m2 |
| Balkon | 6.59 m2 |
| Ogródek | 22.61 m2 |