- 1Parter
- 2Wybierz Piętro
-
3Wybierz mieszkanie
CM0.07
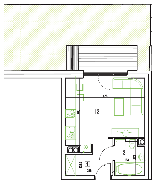
| Nr m.: | CM0.07 |
| Piętro: | Parter |
| Pokoje: | 1 |
| Metraż | 26.38 m2 |
| Przedpokój | 4.60 m2 |
| Salon z aneksem kuchennym | 18.00 m2 |
| Łazienka | 3.78 m2 |
| Taras | 6.56 m2 |
| Ogródek | 28.57 m2 |
| Nr m.: | CM0.07 |
| Piętro: | Parter |
| Pokoje: | 1 |
| Metraż | 26.38 m2 |
| Przedpokój | 4.60 m2 |
| Salon z aneksem kuchennym | 18.00 m2 |
| Łazienka | 3.78 m2 |
| Taras | 6.56 m2 |
| Ogródek | 28.57 m2 |